












Situat într-una dintre cele mai căutate zone din centrul Bucureștiului, la intersecția Străzii Matei Basarab cu Calea Călărașilor, acest apartament decomandat cu 2 camere reprezintă o oportunitate excelentă de achiziție, fie ca locuință personală, fie ca investiție pentru închiriere.
Localizare excelentă
La doar câteva minute de mers pe jos față de Bulevardul Decebal, Piața Alba Iulia și Bulevardul Unirii, apartamentul beneficiază de o poziție centrală, ușor accesibilă către toate punctele importante ale orașului. Zona este cunoscută pentru atmosfera sa urbană, liniștită, dar extrem de bine conectată.
Transport și accesibilitate
• Stația de metrou Muncii, la aprox. 8 minute de mers pe jos
• Stația de troleibuz / autobuz pe Calea Călărașilor, la 2 minute
• Acces rapid către Piața Unirii, Soseaua Mihai Bravu și Bulevardul Basarabia
Educație și facilități de proximitate
• Școli și grădinițe aflate în zonă.
• Supermarketuri, farmacii, clinici medicale, bănci și restaurante sunt la doar câțiva pași.
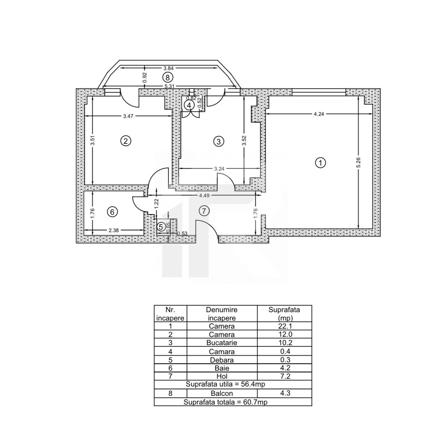
Detalii despre apartament:
• Suprafață utilă: 56,4 mp
• Suprafață totală: 60,7 mp
• Balcon închis: 4,3 mp, cu geamuri termopan și profile PVC
• Compartimentare: Decomandat
• Etaj: 6 / 7
• An construcție: 1989–1990
• Orientare: Sud (lumină naturală pe tot parcursul zilei)
• Stare: Nemodernizat, ideal pentru personalizare completă după preferințele viitorului proprietar
• Disponibilitate: Liber, disponibil imediat
Avantajele principale:
✔️ Zonă centrală, cu acces facil către toate direcțiile orașului
✔️ Bloc solid, dintr-o generație de construcții recunoscută pentru rezistență
✔️ Lumină excelentă – orientare SUD
✔️ Ideal pentru investiție sau pentru un cuplu tânăr care își dorește o locuință centrală
✔️ Documentație completă, apartament liber de sarcini
Pentru informații suplimentare sau pentru programarea unei întâlniri, te invit să mă contactezi.