




















Stii apartamentele acelea care apar rar si dispar repede?
Asa sunt apartamentele de 4 camere din zonele bune ale orasului. Cumparatorii care le cauta stiu bine ce vor – si au rabdare pana apare unul care merita.
Dar acum, iata, un apartament de 4 camere intr-o zona buna este listat la vanzare, pe strada Aurel Botea, la parterul unui bloc de 8 etaje construit pe la jumatatea anilor ‘80.
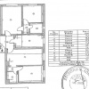
La prima vedere, ai putea crede ca sunt doua apartamente intr-unul singur – si nu ai gresi prea mult. In stanga si in dreapta bucatariei sunt cate doua camere si o baie, ca doua locuinte separate care impart doar bucataria. E o solutie ideala pentru doua familii care vor sa fie aproape, dar totusi independente. Sau pentru parinti si copii adulti care locuiesc impreuna. (Iar cadastrul reflecta exact aceasta compartimentare.)
Bucataria e mare – are 11 mp – si e genul de spatiu unde poti gati, povesti si strange toata familia la masa fara sa te simti inghesuit.
Proprietarii au facut acum 7–8 ani o reimprospatare serioasa: au schimbat parchetul, usile, gresia si faianta din bucatarie.
Blocul este reabilitat, curat si ingrijit.
In fata blocului e un parc de joaca – perfect pentru momentele in care copiii au energie de consumat, iar parintii vor doar sa respire putin.
In apropiere ai gradinite si scoli bune, metrou la Dristor (cam 8 minute de mers) sau la Piata Muncii (aprox. 15 minute).
Magazinele sunt la tot pasul – un Mega Image mare la cateva minute si tot ce ai nevoie pentru cumparaturile zilnice.
De aici, de doua parcuri mari – IOR si Parcul National de pe Bd. Basarabia. Mai esti aproape de Piata Alba Iulia, De Bd. Decebal, de Piata Muncii.
E genul de loc din care ajungi usor oriunde, dar unde e mereu o placere sa te intorci acasa. Si poate fi casa ta! Suna-ma si hai sa il vezi!