












Vă propunem spre vânzare o proprietate rezidențială deosebită, amplasată într-una dintre cele mai prestigioase și bine cotate zone din centrul Capitalei – intersecția Calea 13 Septembrie cu Strada Izvor, în imediata apropiere de Hotelul JW Marriott București, Casa Poporului / Palatul Parlamentului și Catedrala Mântuirii Neamului.
Această poziționare unică oferă nu doar prestigiu și vizibilitate, ci și acces rapid către principalele bulevarde – Libertății, Natihnile Unite, Unirii, aproape de Splaiul Independenței – făcând din această proprietate o alegere excelentă atât pentru rezidență, cât și pentru investiție.
Date generale:
• Suprafață teren: 220 mp
• Suprafață utila: 310,6 mp
• Suprafață totala: 343,9 mp
• Suprafață construită desfășurată: 453 mp
• Regim de înălțime: S+P+2E
• Piscină proprie (20 mp construiți) - dezafectata
Compartimentare:
🔹 Subsol (92,3 mp): garaj spațios, pivniță, spațiu tehnic
🔹 Parter (84,2 mp): living luminos de 49 mp, bucătărie generoasă, baie
🔹 Etaj 1 (74,2 mp): 2 dormitoare, 2 băi, hol generos
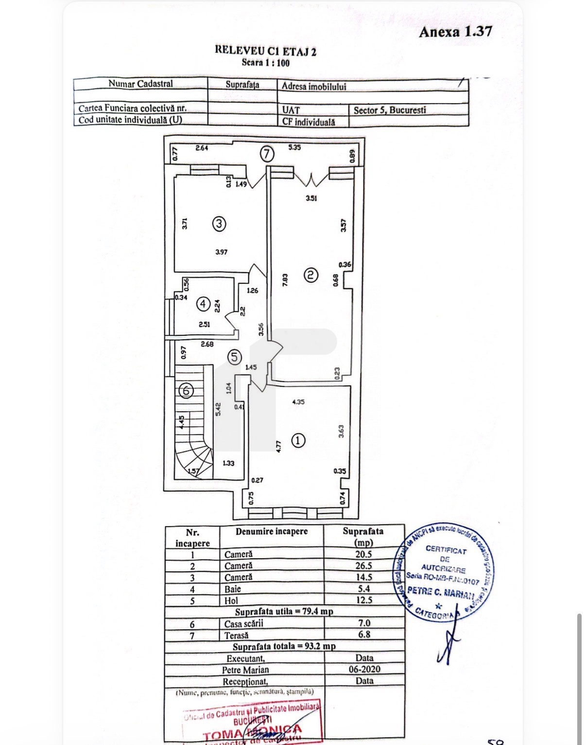
🔹 Etaj 2 (93,2 mp): 3 dormitoare, baie, terasă
Puncte forte:
• Localizare premium, la doar câteva minute de centrul istoric și Piața Unirii
• Vecinătate cu repere arhitecturale și instituționale de prestigiu (JW Marriott, Casa Poporului, Catedrala Mântuirii Neamului)
• Zonă sigură și bine conectată la transportul public (autobuze, tramvaie, metrou Izvor și Eroilor)
• Acces rapid la parcuri (Izvor, Carol), instituții de învățământ, restaurante, centre comerciale și unități medicale
Această proprietate reprezintă o oportunitate rară de achiziție într-una dintre cele mai exclusiviste și reprezentative zone din București.
Spațiile ample, piscina proprie (dezafectata) și proximitatea față de cele mai importante repere ale Capitalei o transformă într-un adevărat reper rezidențial și investițional.
Pentru detalii suplimentare si pentru a programa o vizionare, nu ezitați sa ma contactați.